Kancelárie SLC - Moderná architektúra na Slovensku
| Dočasnosť kancelárií verzus hodnota historického priestoru. |
![]() |
Originálny názov: Kancelárie SLC / Kuklica Smerek architekti
Projekt a architektúra: Kuklica Smerek architekti
Umiestnenie: Bratislava - Ružinov, Slovensko
Plocha: 265 m²
Rok: 2021
Fotograf: Matej Hakár
Hlavný dodávateľ: BK
Svetlá: Svetlo, Zumtobel
Nábytok: Ton, Wemal
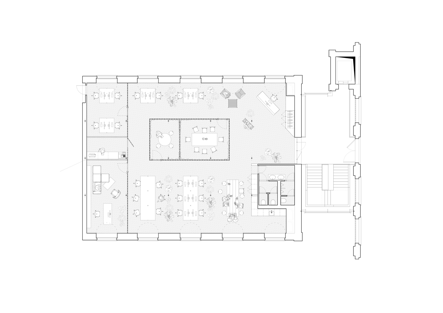
Kancelária spoločnosti BK sídli na najvyššom poschodí novozrekonštruovanej historickej budovy z roku 1902. Do projektu architekti vstúpili v počiatočnej fáze, kde interiér reprezentovali pôvodné historické prvky ako polkruhové okná a subtílne káblové stĺpy podopierajúce oblúkovú strechu. . Niektoré prvky ako zdvojené podlahy, biele omietky, toalety a znížený sadrokartón developer upravil.
![]() |
![]() |
|
„Počas procesu sme mysleli na dizajn interiéru kancelárií a ich dočasnosť. Rozhodli sme sa upgradovať už existujúce funkcie a pridať funkčné komponenty, ktoré sa dajú použiť v každodennom živote, bez akýchkoľvek zbytočných dekorácií. Chceli sme minimalizovať materiálne, ľudské a energetické zdroje. Zamerali sme sa na každý jeden funkčný a technický detail, ktorý bolo potrebné doplniť. Ako hlavné body interiéru sme zvolili okná a káblové stĺpy. Ďalšie komponenty boli pridané, aby slúžili dočasnému účelu priestoru.“
![]() |
![]() |
|
Po základných úpravách je možné priestor využiť multifunkčne: ako byt, galériu alebo kanceláriu. Dispozíciu priestoru vymedzuje centrálny presklený box a presklená stena. Box tvorený zasadacími miestnosťami vytvára komornejší pracovný a spoločenský priestor. Samotný priestor nie je vďaka svojim priehľadným vlastnostiam členitý.
Každý z materiálov bol vybraný podľa jeho funkčnosti. Sklo vytvára akustickú bariéru a prepúšťa svetlo, kaučuková podlaha odľahčuje priestor a je nenáročná na údržbu, nerez a zinok vyhovuje technickému zameraniu firmy. Drevené stoly sú ukážkou jedinečného remeselného spracovania. Konečný interiér je jednoduchý, ale umožňuje mnoho interpretácií.
![]() |
![]() |
![]() |
| eshop.stavba-az.sk | ||
![]() |
![]() |
|
![]() |
![]() |
|
![]() |
![]() |
![]() |
| eshop.stavba-az.sk | ||
![]() |
![]() |
|
![]() |
![]() |
|
[adsense01][/adsense01]
![]() |
![]() |
|
![]() |
![]() |
|
Súvisiace fórum :Stavba - Projekty, nápady
Zdroj :archdaily.com
| Vaša Stavba od A po Z. |
Aj ked to vyzera dost sterilne, posobi to na mna velmi dobrym dojmom. Take ciste a upravene. Rozhodne palec hore architektovi a ludom co sa podialali na zariadovani
Nepovedal by som, že sterilne. Keď tam prídu ľudia, tak to chytí inú atmosféru. Z hľadiska toho priestoru je to fajn riešené. Presvetlené, žiadne zbytočnosti a tie rastliny vedia ževraj aj nejak ukľudňujúco pôsobiť, že taký lepší pocit má človek, keď je tam nejaká zeleň.
Vyzerá to veľmi dobre. Osobne mám rád takýto štýl tak teda palec hore
Pekne, jednoduche, ziadne zbytocne rusive vplyvy. Za mna moze byt. Lepsie ako tie komunisticke kancelarie na uradoch.
nooo tak to hej, v niektorých firmách to doslova vyzerá jak v nejakej králikárni. toto je teda uz nieco. velmi pekne
Vacsi a svetlejsi priestor je aspon za mna ovela lepsie ako sa tlacit v nejakej malej kancelarii. Takze ano.
Tak taketo kancelarie by podla mna uvital kazdy taky pracovnik. Vyzera to tam velmi pekne a svetlo
ked sa pozriem na tu nasu, no hned by som menila a isto by som sa tam citila lepsie. tisko zavidim
no jasne, ono si vela ludi predstavuje, ze ked niekto robi v kancelarii za pocitacom, tak len sedi za stolom a netreba mu k tomu nic viac. ale kazdemu je prijemnejsie, ked ma okolo seba nejaky priestor, dobre osvetlenie a tak dalej.
To je velka pravda. Pracovne prostredie vie spravit velmi vela aj na samotnom pracovnom vykone si myslim
noooo to hej, len v kazdej profesii sa to proste neda
to je pravda, no neda sa tymto kancelariam upriet to, ze proste vyzeraju skvelo
parada, proste skvela praca, pekny priestor, clovek sa tam musi proste citit dobre
Pekne pekne, mat tak kancelarsku robotku, tak si viem predstavit fungovat v niecom takomto. Prostredie spravi vela, vie na nas vplyvat, aj ked sa to mozno nezda.






















