| DOPLNENIE: Popis plánovanej výstavby (podorysy, pohlady a vizualizácie projektu) |
|
Projekt bude tvoriť 5 samostatných objektov - 5 bytových domov v jednom, ucelenom areáli.
Ide o troj až osem podlažné objekty, súčasťou ktorých majú byť aj garáže na 1. NP.
OBJEKT SO – 01 BYTOVÝ DOM
Zastavaná plocha: 306,86m2
Celková úžitková plocha: 851,22m2
Obostavaný priestor: 2736,40m3
Úžitková plocha 1.n.p.: 239,3m2
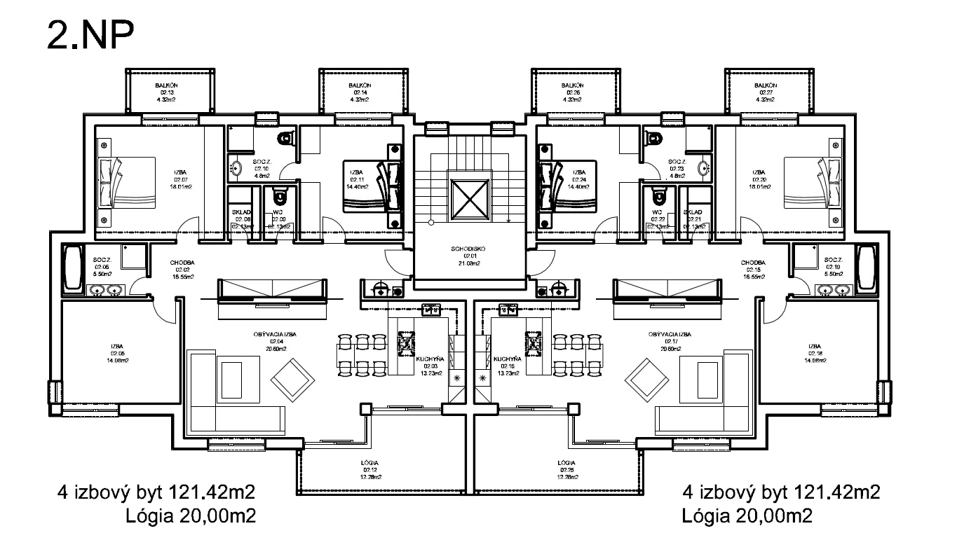
Úžitková plocha 2.n.p.: 264,12m2 balkón 41,84m2
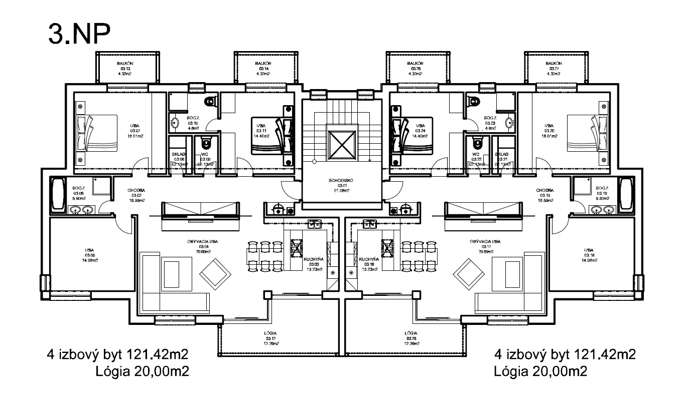
Úžitková plocha 3.n.p.: 264,12m2 balkón 41,84m2
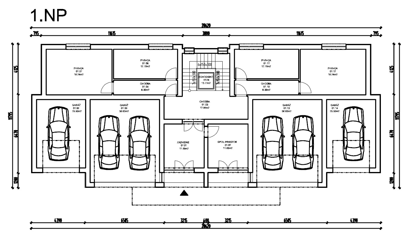
Trojpodlažná samostatne stojaca budova. Na 1.NP budú samostatné jednotlivé garáže pre 6 osobných vozidiel, okrem toho spolocné a pivnicné priestory obyvatelov domu. Komunikacným jadrom spájajúcim podlažia budovy bude vstupná hala s jedným schodiskom.
 |
|
 |
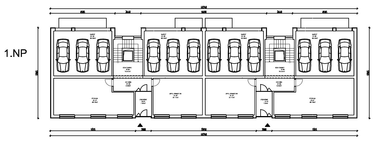
| Pôdorys 1.NP |
|
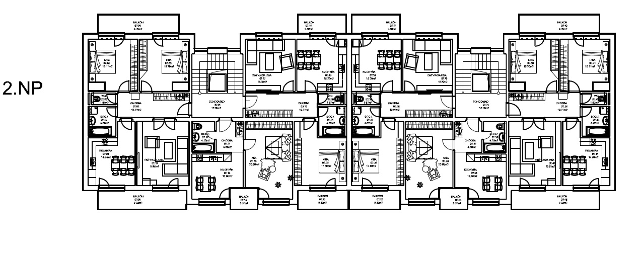
Pôdorys 2.NP |
 |
|
 |
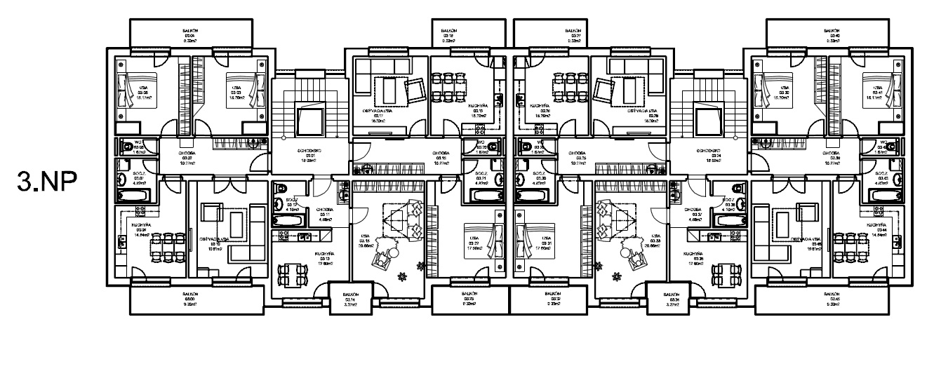
| Pôdorys 3.NP |
|
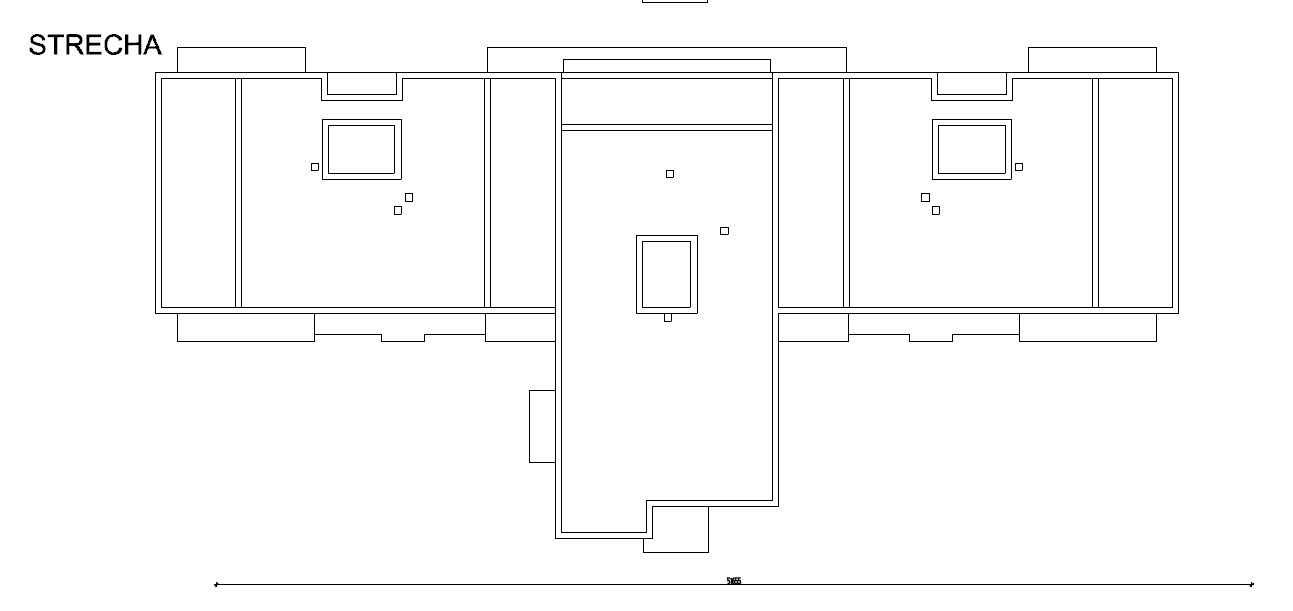
Pôdorys strechy |
OBJEKT SO – 02 BYTOVÝ DOM
Zastavaná plocha: 669,67m2
Celková úžitková plocha: 2434,83m2
Obostavaný priestor: 7679,36m3
Úžitková plocha 1.n.p.: 556,14m2
Úžitková plocha 2.n.p.: 556,32m2 balkón 115,08m2
Úžitková plocha 3.n.p.: 438,12m2 balkón 85,21m2 terasa 34,91m2
Úžitková plocha 4.n.p.: 453,88m2 balkón 121,72m2 terasa 73,53m2
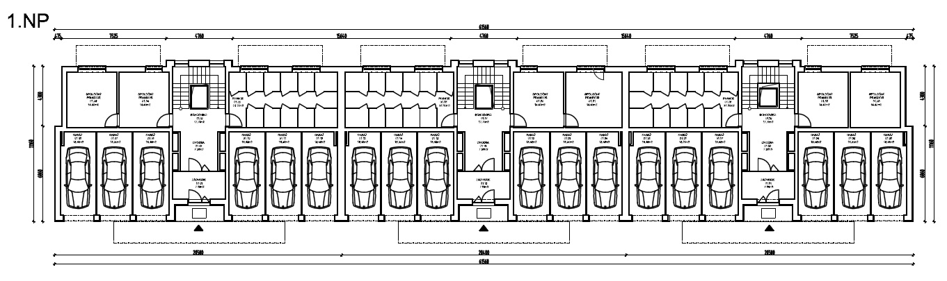
Štvorpodlažná samostatne stojaca budova s troma sekciami. Na 1.NP budú samostatné jednotlivé garáže pre 18 osobných vozidiel, okrem toho spolocné a pivnicné priestory obyvatelov domu. Komunikacným jadrom spájajúcim podlažia budovy budú vstupné haly s troma schodiskami.
 |
|
 |
| Pôdorys 1.NP |
|
Pôdorys 2.NP |
OBJEKT SO – 03 BYTOVÝ DOM
Zastavaná plocha: 358,39m2
Celková úžitková plocha: 2660,21m2
Obostavaný priestor: 8951,73m3
Úžitková plocha 1.n.p.: 308,67m2
Úžitková plocha 2.n.p.- 7.n.p.: 302,8,m2 balkón 48,4m2
Úžitková plocha 8.n.p.: 244,34m2
Sedempodlažná samostatne stojaca budova tvorená jednou sekciou. Na 1.NP budú samostatné jednotlivé garáže pre 8 osobných vozidiel, okrem toho spolocné a pivnicné priestory obyvatelov domu. Komunikacným jadrom spájajúcim podlažia budovy bude vstupná hala s jedným schodiskom.
 |
|
 |
| Pôdorys 1.NP |
|
Pôdorys 2. až 7.NP |
 |
|
 |
| Pôdorys 8.NP |
|
Pôdorys strechy |
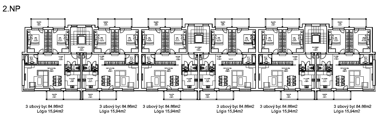
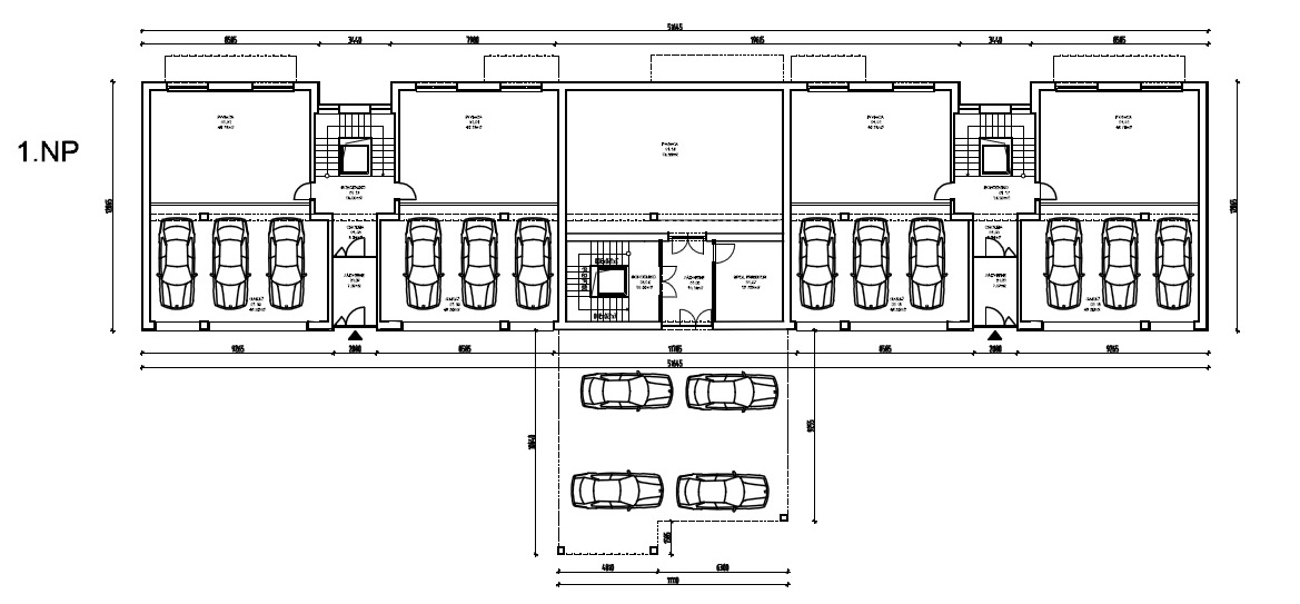
OBJEKT SO – 04 BYTOVÝ DOM
Zastavaná plocha: 718,55m2
Celková úžitková plocha: 3439,6m2
Obostavaný priestor: 10 388,13m3
Úžitková plocha 1.n.p.: 528,21m2
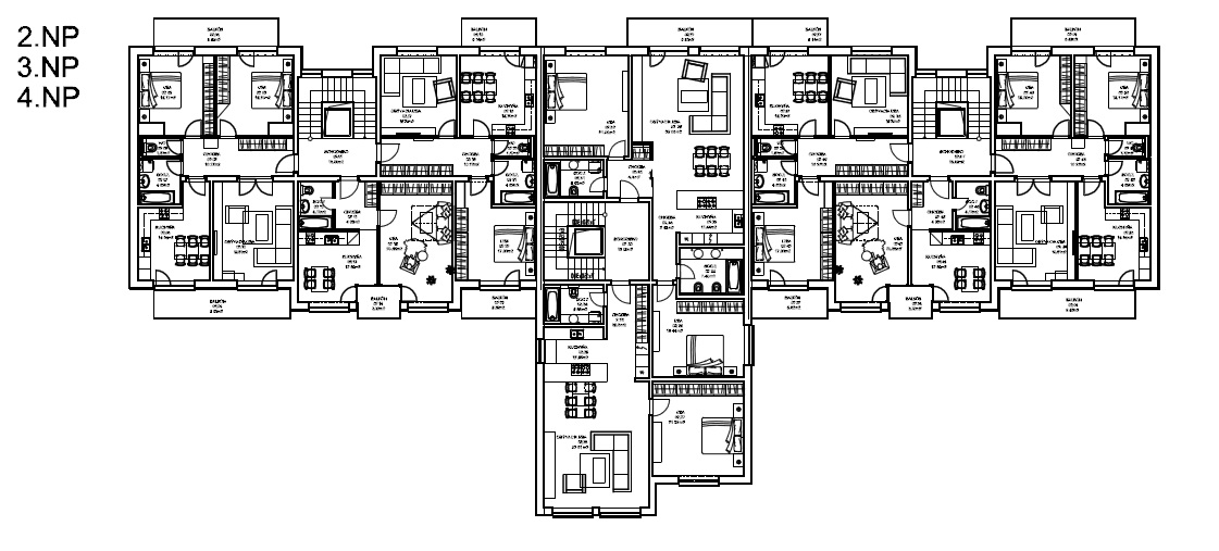
Úžitková plocha 2.n.p.: 701,07m2 balkón 67,54m2
Úžitková plocha 3.n.p.: 701,07m2 balkón 67,54m2
Úžitková plocha 4.n.p.: 701,07m2 balkón 67,54m2
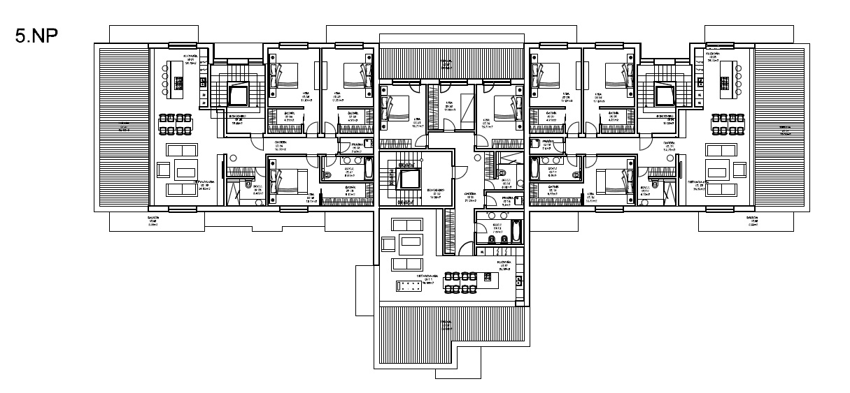
Úžitková plocha 5.n.p.: 472,2m2 terasa 134,56m2
Pätpodlažná samostatne stojaca budova s troma sekciami. Na 1.NP budú samostatné jednotlivé garáže pre 12 osobných vozidiel, okrem toho spolocné a pivnicné priestory obyvatelov domu. Komunikacným jadrom spájajúcim podlažia budovy budú vstupné haly s troma schodiskami.
 |
|
 |
| Pôdorys 1.NP |
|
Pôdorys 2. až 4.NP |
 |
|
 |
| Pôdorys 5.NP |
|
Pôdorys strechy |
OBJEKT SO – 05 BYTOVÝ DOM
Zastavaná plocha: 478,60m2
Celková úžitková plocha: 1814,7m2
Obostavaný priestor: 5 785,95m3
Úžitková plocha 1.n.p.: 378,9m2
Úžitková plocha 2.n.p.: 415,88m2 balkón 62,72m2
Úžitková plocha 3.n.p.: 415,88m2 balkón 62,72m2
Sedempodlažná samostatne stojaca budova tvorená jednou sekciou. Na 1.NP budú samostatné jednotlivé garáže pre 8 osobných vozidiel, okrem toho spolocné a pivnicné priestory obyvatelov domu. Komunikacným jadrom spájajúcim podlažia budovy bude vstupná hala s jedným schodiskom.
 |
|
 |
| Pôdorys 1.NP |
|
Pôdorys 2.NP |
 |
|
 |
| Pôdorys 3.NP |
|
Pôdorys 4.NP |
[adsense01][/adsense01]
Zdroj: enviroportal.sk
Pozri ďalšie z oblasti: SPRÁVY - Aktuality
Publikované : 24/09/2012 12:54 pm