Pripoj sa k nám!
Súťaž o návrh námes...
 
Zdieľať:
Upozornenia
Vyčistiť všetko

Súťaž o návrh námestia v Mníchove vyhral Delugan Meissl

1 Príspevky
1 Užívatelia
0 Reactions
4,256 Zobrazenia
(@spravy-az)
Príspevky: 67
Estimable Member
Topic starter
 
V Mníchove prebehla súťaž o architekta pre návrh námestia. Vyhral Delugan Meissl.


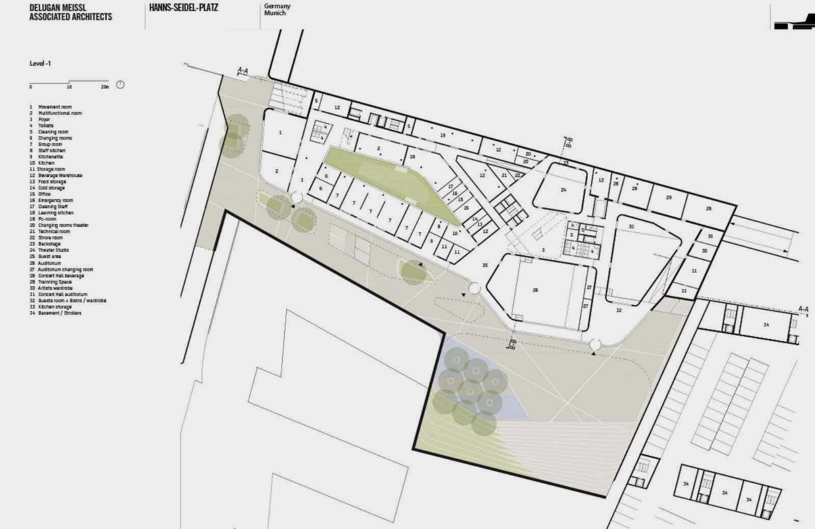
Štúdio Delugan Meissl Associated Architects bolo vybrané ako víťaz súťaže pre návrh komplexu so zmiešaným využitím (kultúrno – spoločenské) v Mníchove.
Víťazný projekt „Námestie Hannsa Siedela (Hanns Seidel Platz)“ v sebe kombinuje 160 bytov – obytná veža, občianske centrum, koncertnú miestnosť a priestranné verejné námestie. Toto všetko bude súčasťou štvrti Neuperlach, ktorá by mala byť dokončená v roku 2019.

[adsense01][/adsense01]

Porota, pod vedením Thomasa Jochera, vybrala z jedenástich zúčastnených týchto päť najlepších :

1. Delugan Meissl AssociatedArchitects (DMAA) a Helmut Wimmer and Partners, Viedeň, spolu s EGKK Landscape Architecture, Viedeň
2. Colboc Franzen &Associés, Paríž, spolu s Topotek 1, Berlín
3. Baumschlager Eberle, Lustenau, spolu s plan Senner, Mníchov
4. Auer + Weber + Associates GmbH, Mníchov, spolu s Grabner + huber, Freising
5. Bogevischs buero, Mníchov, with basement dam Roser, Mníchov

Základné údaje o víťaznom návrhu :

Umiestnenie: Mníchov, Nemecko
Architekt: Delugan Meissl Associated Architects
Projekčný tím: Alejandro Carrera, Christian Gross, Catarina Mendonca, Diogo Teixeira
Plánovanie: Wimmer und Partner
Záhradná architektúra: EGKK Landshaftsarchitektur
Statika, fasáda: Vasko+Partner
Plocha staveniska: 7.362 m2
Celková podlažná plocha: 40.500 m2
Rok projektu: 2013

Vaša Stavba od A po Z.

 
Publikované : 05/01/2014 5:30 pm
Pripoj sa k nám!
Online užívatelia

 Žiadny člen momentálne prihlásený

Kategórie článkov:

Zo správ, aktualít, tém a inšpirácií :)..