Rodinný dom 4x4m - malý, viac poschodový (projekt, nápady)
| Riešenie malého domu na pozemku s rozlohou iba 34m2 - Unemori Architects / Tokyo |
Architektúra : Unemori Architects
Umiestnenie : Meguro, Tokyo, Japan
Plocha : 67 m2
Rok : 2010
Fotografie : Ken Sasajima
Statika : Structured Environment
Development : Taishin Construction
![]() |
![]() |
![]() |
Slovo architekta. Tento pôdorysne malý domček bol navrhnutý pre pár mladých ľudí a ich deti vo veľmi zaľudnenej časti Tokia. Aj napriek tomu, že sú susedné domy veľmi blízko navrhnutého objektu, zvolili sme tvar a formu ktorá vytŕča zo zabehnutého dizajnu v tejto časti mesta. Na pozemok sme umiestnili budovu s pôdorysom 4x4m, tak malú ako to len šlo, aby sme na pozemku s rozlohou 34m2 získali prístup slnka a prievzdušnosť jej okolitého priestoru.
![]() |
[adsense01][/adsense01]
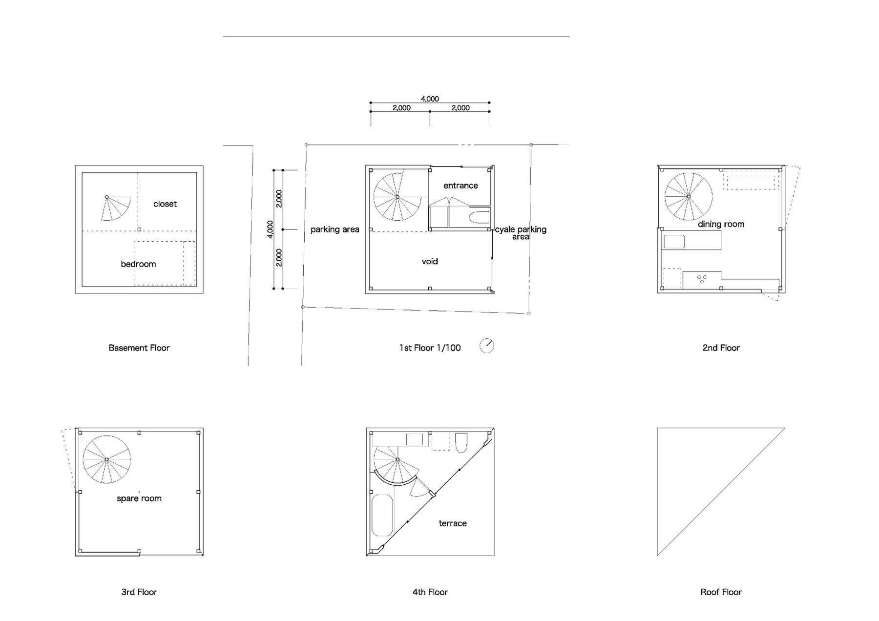
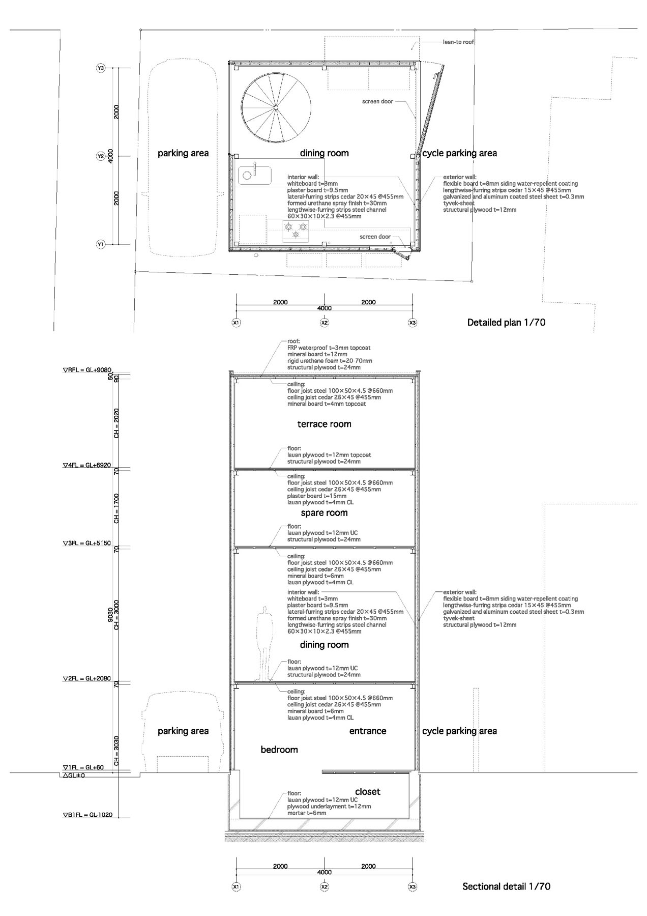
Vďaka vytvoreniu tohto priestoru sme pohodlne zabezpečili odstupové vzdialenosti a dostali sme zaujímavý tvar 9m veže. Vnútro objektu je rozdelené 4-mi podlažnými doskami, pričom jednotlivé podlažia sú navzájom prepojené priebežným špirálovitým schodiskom. Pohľadovo veľmi tenké stropné dosky (70mm) dotvárajú prepojenie priestoru podlaží a celého priestoru objektu domu. Nosnú konštrukciu tvorí oceľový rám, ktorý z vnútorného priestoru uberá len minimálne.
![]() |
![]() |
![]() |
Voľný priestor okolo domu nám zabezpečuje prievzdušnosť a preslnenie fasády. Steny miestností sú zároveň exteriérové a preto bolo pri umiestnení okien potrebné zvoliť polohu, ktorá by bola funkčná a zároveň estetická. Okná sú zvolené tak veľké, že pri ich otvorení / zatvorení dôjde k dramatickej zmene charakteru priestoru.
![]() |
![]() |
![]() |
Najviac to pocítite na druhom a treťom nadzemnom podlaží, kde ak otvoríme okno s výškou na celé podlažie, miestnosť sa výrazne presvieti a pocítite prúdenie vetra miestnosťou. Najvyššie podlažie je miestnosťami využité len z polovice a druhá polovica je obsadená malou terasou.
![]() |
![]() |
![]() |
Točité schodisko prepája všetky podlažia a vertikálne prepája priestor do jedného celku.
Ostatná galéria k projektu + výkresy :
![]() |
![]() |
|
![]() |
![]() |
![]() |
|
![]() |
![]() |
![]() |
Zdroj : archdaily.com
| Vaša Stavba od A po Z. |
úžastnééé
ako sú vyriešené okná .. proti vypadnutiu ? ![]()
to iste mi napadlo o schodisku. Tá diera bez zábradlia tam vyzerá dosť nebezpečne.. určite by bolo potrebné doriešiť "niekoľko" detailov. Ale konštrukčne je to riešené zaujímavo a páči sa mi tá terasa na vrchu
.
Z.




















