| „Black House“ Chorvatsko - trochu Jadranu / DVA ARHITEKTA |
|
Architekt: DVA ARHITEKTA
Umiestnenie: Zahreb, Chorvatsko
Rok projektu: 2011
Projektovana plocha: 590 m2
Fotograf: DVA Arhitekta
Viem ze nasa klima nie je zrovna jadranska, no nasli sme jedno zaujimave riesenie domu v Zagrebe, v Chorvatsku. Stavba riesi dva funkcne identicke domy, z ktorych jeden ma sluzit na sukromne ucely a druhy je urceny na prenajom. V rieseni objektu vidno snahu o udrzanie funkcnosti obidvoch bytovych jednotiek a ich vizualneho zcelenia. |
|
 |
Situácia osadenia :
Zaroven sa vsak architekt snazil zachovat pocit sukromia v oboch castiach domu. Ked sa pozrieme na prilozene foto, je vidno, ze tito „dvaja architekti“ maju svojsky styl. Mozeme vidiet, ze okrem ideoveho prepojenia, su samotne objekty prepojene aj konstrukcne – spojovacimi stenami. Tieto steny obkolesuju pozemok a nasledne vchadzaju do objektov tak, aby ich vizualne dotvorili. Objem domu nevytvaraju len steny samotneho domu, ale aj dizajnove casti stien a falosne ramy.
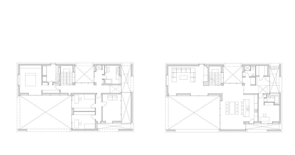
Pôdorysy :
|
Medzi funkcnym jadrom domu a vonkajsou schrankou, je vytvorenych niekolko atrii. Architekt takto vytvoril zony, ktore umoznuju efektne prejst z interieru do exterieru. Okrem prvotneho ucelu (atrium, terasa), sluzia tieto miesta aj na dotvorenie atmosfery a navodenie pocitu sukromia. Vyuzivaju vztah medzi vyplnenym a prazdnym priestorom, svetlom a tienom, dalo by sa povedat ze tieto „falosne“ predstienky vytvaraju istu nejasnost linie medzi vnutornym a vonkajsim priestorom.
Ramy a deliace steny zapracovane do stien najdeme na vstupe, na prechode do zahrady, na terase obyvacky (vylozenej drevom) a rovnako ja na terase pri hlavnej spalni. Vsetky tieto prvky tento dom dotvaraju a robia ho nevsednym. |
V galerii su pripojene fotky na ktorych je vidno, ze pravouhla linia a zvolene farebne riesenie Black house zaujmu. Tak isto su tu prilozene rezy a podorysy, ktore vam ozrejmia konstrukcne riesenie a riesenie dispozicie. Tak, co poviete, vedeli by ste si predstavit "severske" riesenie Black house ? 
[adsense01][/adsense01]
Pozrite si aj iné z oblasti : TÉMY - Zaujímavosti (stavba, architektúra)
Publikované : 09/01/2012 8:03 pm