| Projekt rodinného domu vhodného do radovej zástavby, aj na malý pozemok. |
|
Architekti : Darkitectura
Umiestnenie : Santiago de Querétaro, Querétaro, Mexico
Projekčný tím : Julio Juárez, Hugo Maldonado, Luis Arteaga
Plocha : 85 m2
Rok : 2012
Fotograf : Julio Juárez
Súvisiace fórum : Stavba - Projekty, nápady
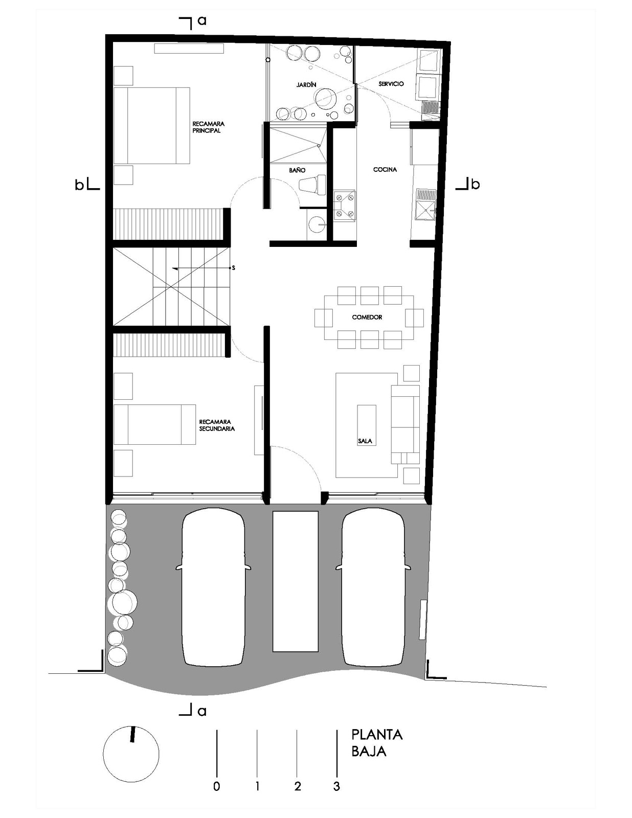
Slovo Architekta. Sociálny, zelený dom je prototyp dostupnej bytovej výstavby domov s 85m2 plochy, ktorej hlavnou úlohou bolo priniesť pridanú hodnotu k štandardnej výstavbe tohto segmentu. To všetko pri udržaní zabehnutej priemernej ceny. Bol postavený na pozemku s rozmermi 8 x 16m na predmestí Querétaro ktoré sa javí ako ideálne pre použitie tohto konceptu otvoreného domu. Projekčne je priestor osadený do pravouhlého kvádrovitého tvaru a poskytuje netradičnú 3,2m svetlú výšku. Týmto poskytuje užívateľovi zhruba 0,5m výšky naviac oproti štandardu a pocit "medzi poschodia".
[adsense01][/adsense01]
 |
Tento pridaný priestor s priaznivejšou klímou je len jeden z troch krokov, ktoré viedli k vytvoreniu "udržateľného" projektu bez nutnosti použitia klimatizácie. Druhým krokom je použitie zelenej strechy, čím sa objektu poskytne dostatočná tepelno-izolačná a akumulačná schopnosť skladby strešného plášťa. No a nakoniec tretím krokom by malo byť použitie fasádnych žalúzií a polarizačných skiel na okná, ktoré sú riešené na výšku celého podlažia.
Z technického hľadiska je riešenie nasledovné: Fasádne žalúzie sú otváravé a spolu s posuvnými hliníkovými dverami uzatvárajú dom voči exteriéru, alebo ho naopak dokážu úplne otvoriť. Dom je postavený tradičnými postupmi ako sú murované steny, doskovo-prievlakový strop, schody z ohýbaného plechu, sadrokartónový podhľad a hliníkové okná. To všetko dopĺňa podlahové kúrenie a inštalácie vedené v podlahe. Projekt je teda výberom materiálov nastavený tak, aby udržanie ceny ostalo v medziach "sociálnej" výstavby.
Ako alternatívy využitia 85m2 zelenej strechy sú k dispozícii vonkajšia terasa, fitnes priestor, záhrada, alebo ich kombinácia. Všetko s účelom zvýšenia komfortu a kvality bývania.
Ako je vidno, tieto domy sa dajú prispôsobiť na malé aj väčšie pozemky. Zároveň svojim výzorom poskytujú nový vzhľad pre prípadný projekt developerskej radovej zástavby. Projekt je nastavený tak aby bolo možné jednotlivé domy rozšíriť o obytné plochy aj na druhom nadzemnom podlaží (2. NP) pričom sa jednotlivé žalúzie predĺžia do kompaktných celkov.
Čo vy na to ? Páčila by sa vám takáto zástavba ?
Galéria projektu :
Zdroj : archdaily.com
Súvisiace fórum : Stavba - Projekty, nápady
Publikované : 27/10/2013 9:33 pm