Rodinný dom - Melbourne (rekonštrukcia, prístavba)
| Rodinný dom na predmestí Middle Park, Melbourne / Mitsuori Architects |
• Poloha: Melbourne, Viktória, Austrália
• Rozloha: 260 m2
• Architekti: Mitsuori Architects
• Rok projektu: 2015
• Foto: Michael Kai Photography
![]() |
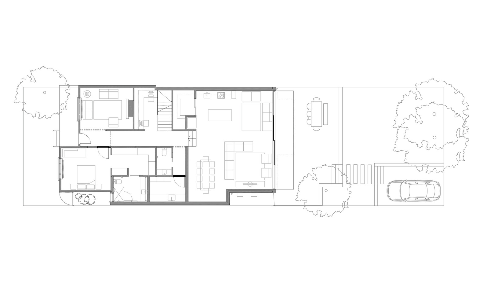
Slovo architekta. Táto renovácia a prístavba k existujúcemu viktoriánskemu domu reaguje na meniace sa potreby aktívnej a rozrastajúcej sa rodiny na mnoho rokov dopredu a vytvára flexibilné priestory s uvoľnenou atmosférou. Zámerom projektu, ktorý zahŕňa renováciu existujúcej historickej budovy a prístavbu dvojpodlažného prístavku, je vytvorenie rodinného domu s viacerými zónami.
![]() |
![]() |
|
![]() |
![]() |
|
Nová prístavba je prepojená s existujúcim domom tak, aby sa zredukovala viditeľnosť z ulice a zminimalizoval sa dopad na zadnú záhradu a susedné domy. Existujúce izby sú prerobené na priestor hlavnej spálne domu s novou súkromnou kúpeľňou, ktorá je diskrétne vsadená medzi existujúcu budovu a oplotenie. Otvorená študovňa a schodisko sú umiestnené do voľného priestoru medzipodlažia, čo vytvára prepojovací bod medzi starým a novým. Nový prístavok pozostáva z veľkého jednopriestorového obývacieho priestoru na prízemí a časti pre deti na prvom poschodí.
![]() |
![]() |
|
Priestranný obývací priestor, ako aj priestor pre prijímanie hostí je navrhnutý tak, aby bolo možné flexibilné rozmiestnenie nábytku. Nachádza sa tu aj posuvné presklenie na celú šírku steny, cez ktoré sa dá dostať na zadnú terasu alebo do záhrady. V celom projekte sú použité prírodné materiály, napríklad vonkajší obklad a žalúzie z odolného eukalyptového dreva alebo vybrúsené betónové podlahy. Pre vytvorenie pohodlných a ľahko udržiavaných priestorov sú v interiéri použité drevo a kameň. Tlmené odtiene bielej, prírodné drevo a tmavá vybrúsená podlaha vyvárajú sofistikovanú, a predsa uvoľnená atmosféru mestského rodinného domu.
![]() |
![]() |
|
Zdroj: archdaily.com
| Vaša Stavba od A po Z. |
Mne v tej dispozícii chýba zádverie .. na slovenské pomery určite. Vstup by som riešil cez ten úzky priestor za telkou v obývačke
.
Z.








