Pripoj sa k nám!
Zdieľať:
Upozornenia
Vyčistiť všetko

Zaujímavý návrh novej Kežmarskej chaty vo Vysokých Tatrách

1 Príspevky
1 Užívatelia
0 Reactions
6,274 Zobrazenia
temy-az
(@temy-az)
Príspevky: 125
Člen Moderator
Topic starter
 
Architektonické štúdio Atelier 8000 - súťažný návrh Kežmarskej chaty vo Vysokých Tatrách


Architekt: Atelier 8000
Poloha: TANAP, Vysoké Tatry, Slovensko
Rok: 2014
Foto: Jan Cyrany, Atelier 8000

V dňoch 12.6.- 14.6.2014 sa uskutočnilo hodnotenie 95 súťažných návrhov zo Slovenska a ďalších 8 krajín z celej Európy v rámci medzinárodnej súťaže Nová Kežmarská chata. Účelom súťaže bolo získanie najlepšieho architektonického návrhu, ktorý okrem kvalitného dispozičného riešenia, konštrukčno-stavebnej a ekonomickej efektívnosti, ekologickej vhodnosti a energetickej výhodnosti, bude originálnym architektonickým dielom, ktoré sa stane vizuálnym znakom novej Kežmarskej chaty v povedomí širokej verejnosti.

[adsense01][/adsense01]

Tu si môžete pozrieť aj víťazný návrh :

Súťaže sa zúčastnilo aj české architektonické štúdio Atelier 8000. Aj keď ich súťažný návrh súťaž nakoniec nevyhral, možno povedať, že svojím jedinečným charakterom sa zaradil medzi tie najzaujímavejšie a najodvážnejšie návrhy.

Samotnému návrhu štúdia Atelier 8000 dominuje jednoduchá kocka osadená na jednom z jej vrcholov. Objekt evokuje bludný balvan, ktorý za sebou zanechal ustupujúci ľadovec, zatiaľ čo jeho ostré hrany zapadajú do pozadia hôr.

“Vďaka osadeniu stavby sú tri strany fasády viditeľné z akéhokoľvek pohľadu, čo podporuje hru svetla a tieňov – ten istý efekt môžeme pozorovať na okolitých skalách,“ uvádza Atelier 8000. „Presklené plochy okien a fotovoltických panelov spolu s ľahkou transparentnosťou plechového obloženia dopĺňajú celkový obraz miesta o ligot – presne ako odlesky a odrazy, ktoré je možno vidieť na hladine plesa alebo povrchu topiaceho sa ľadu.”

Konštrukcia objektu je postavená z lepených laminátových drevených nosníkov zo smrekového dreva. Hliníkový systém fasády je navrhnutý vo forme štvorcových panelov. Rozmery jednotlivých prvkov fasády sú navrhnuté v module 1×1 meter, aby sa napomohlo ľahkej manipulácii a doprave na miesto stavby.

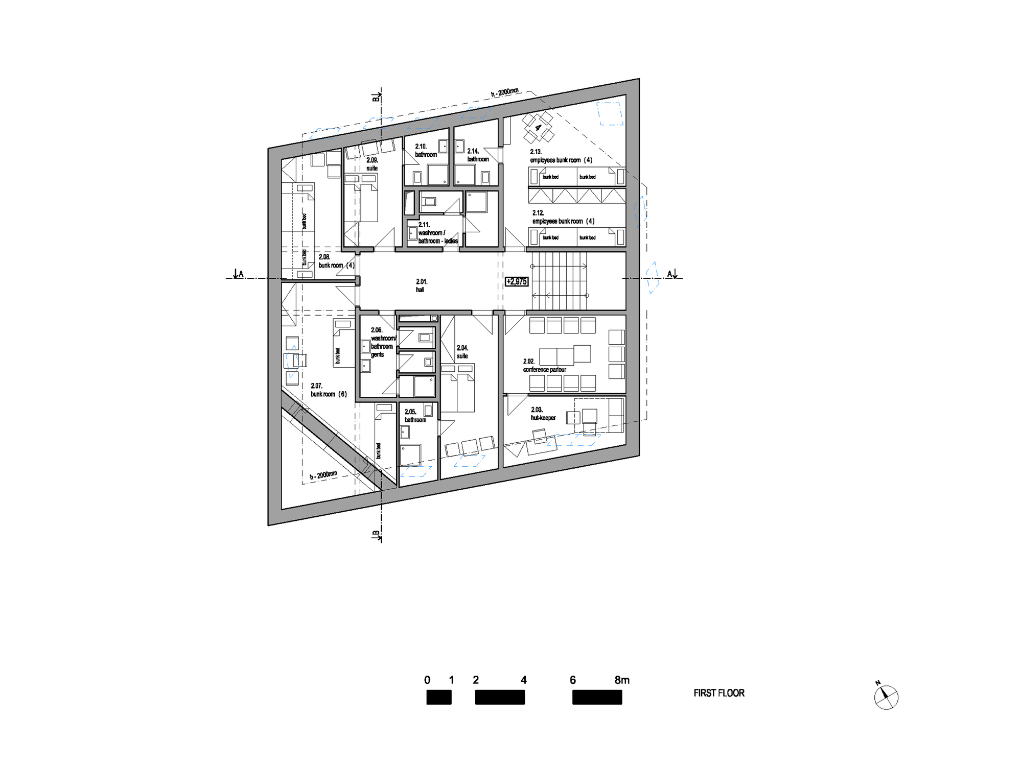
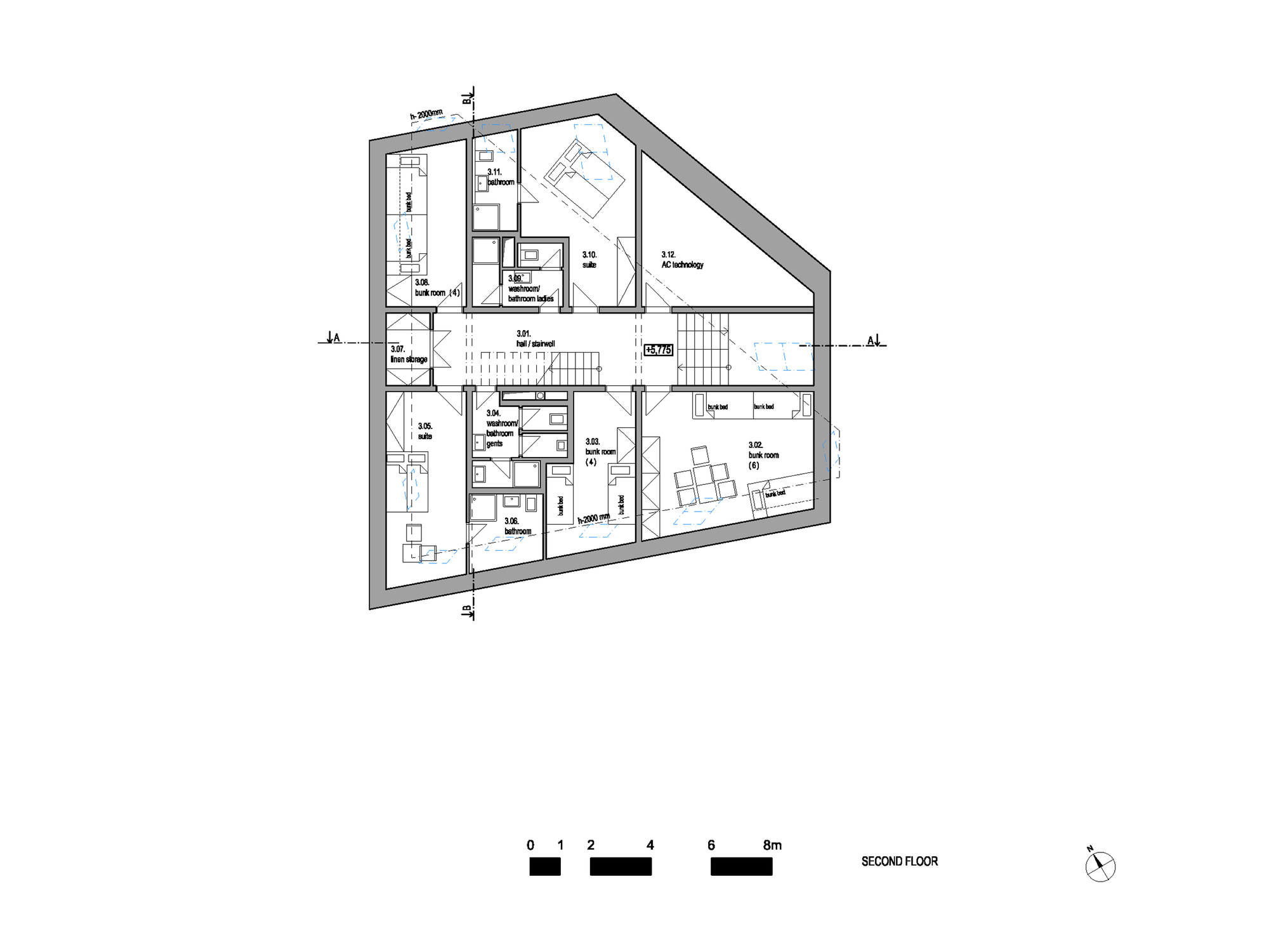
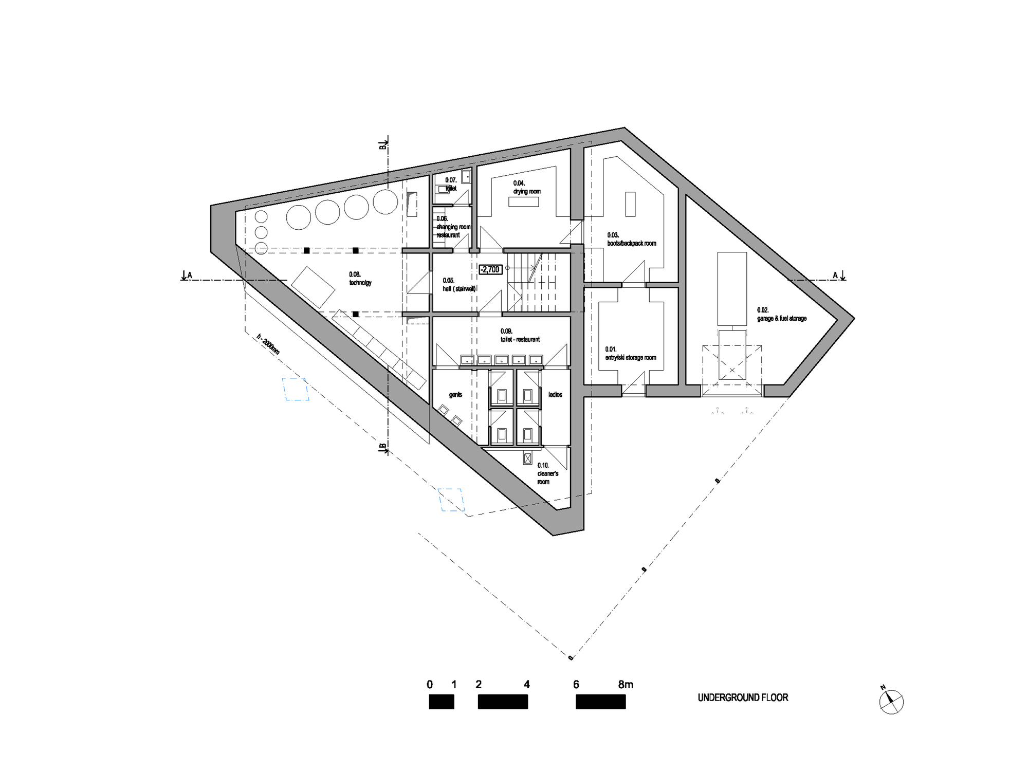
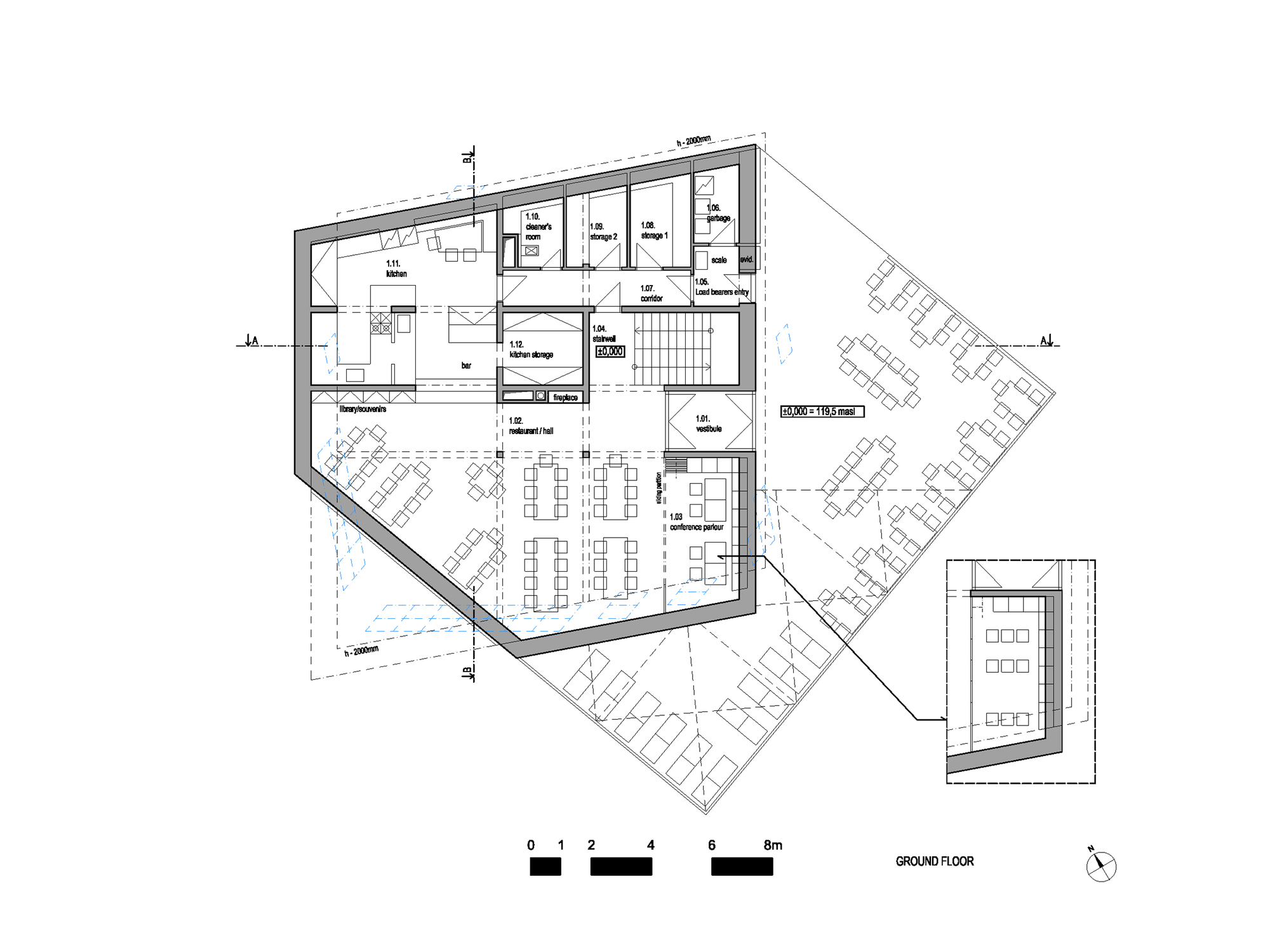
V suteréne chaty sa nachádza garáž pre snežný skúter, vstup pre personál, lyžiareň, sušiareň a toalety reštaurácie. Na prízemí je situovaná samotná reštaurácia a terasa, zatiaľ čo vyššie poschodia slúžia na ubytovanie, podkrovie na núdzové prespanie.

Z hľadiska výroby a spotreby energie je chata navrhnutá ako pasívna budova. Jej tvar a orientácia maximalizujú slnečnú energiu, zatiaľ čo časti fasády s jednotkami na výrobu energie sú orientované južne a východne, aby boli otočené priamo proti slnečným lúčom.

Ostatná galéria k článku:

Zdroj: archdaily.com, atelier8000.cz, kezmarskachata.sk

Vaša Stavba od A po Z.

 
Publikované : 14/10/2014 5:15 pm
Pripoj sa k nám!
Online užívatelia

 Žiadny člen momentálne prihlásený

Kategórie článkov:

Zo správ, aktualít, tém a inšpirácií :)..