| Doplnenie: Trochu architektonického popisu navrch (enviroportal.sk) |
|
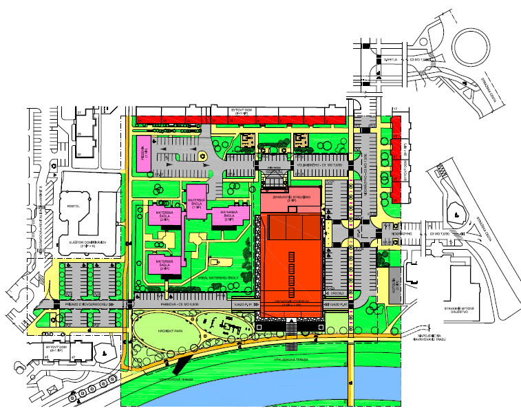
Z čitateľnej urbanistickej koncepcie sídliska Západ je umiestnenie polyfunkčného objektu v páse občianskej vybavenosti lemovanej zo severovýchodu Nográdyhou ulicou logické. Napriek jej „prerušeniu" bytovým domom na ulici Voljanského, tvorí toto územie so šírkou cca 180 m urbanisticky cielene vytvorené sídliskové centrum so sústredenou občianskou vybavenosťou, ktorú navrhovaný objekt ďalej rozvíja juhovýchodným smerom k rieke a doplňuje o chýbajúce funkcie. Zvažovaná funkčná náplň a cieľová skupina predpokladá prioritne návštevníka z priestoru sídliska, čo znižuje nároky na statickú aj dynamickú dopravu.
 |
|
 |
|
|
|
Architektúra objektu vstupuje do cieleného kontrastu s panelovou monokultúrou okolitých stavieb. Motív bude v nočných hodinách podsvietený a spolu s presklením juhovýchodnej fasády vytvorí zároveň reklamný pútač pre okolie. Cez sklenú membránu východnej fasády vedie stavba dialóg s okolitou prírodnou zložkou. Na fasáde, formou balkónov a pred ňou - na terasách sú navrhnuté pobytové exteriérové plochy naviazané na gastro prevádzky.
 |
|
 |
|
|
|
Podúrovňové parkovisko je sprístupnené dvojicou rámp z oboch príjazdových smerov. Z podúrovňového parkoviska sa zákazník dostáva priamo do stredu obchodného móla, resp. druhou vertikálou do zdravotného strediska. Hlavný vstup do obchodného centra je situovaný na os príjazdovej vetvy z Nográdyho ulice. Táto os tiež organizuje priestor v predpolí centra a delí parking na menšie skupiny po oboch stranách hlavného vstupu. Druhý vstup v pravo od hlavného sprístupňuje vetvu zdravotného strediska, tretí evakuačný vstup je zároveň obslužný pre gastro prevádzky. Zásobovanie je orientované do Voljanského ulice v združení so zásobovaním ostatných nebytových objektov v jej pokračovaní.
 |
|
 |
|
|
|
Organizácia hlavnej časti centra je založená na centrálnom priestore dvojpodlažného móla s galériou, ktorej stredom sú vedené vertikálne komunikácie - schodisko, výťah a eskalátory. Mólo je na strane rieky rozšírené do odbytovej plochy gastro prevádzok. Zdravotné stredisko implementované do pôvodnej časti stavby, z ktorej jedna tretina bude asanovaná tvorí prevádzkovo oddeliteľnú časť so samostatným vstupom a zázemím. V prízemí je stredisko prepojené na obchodné mólo aj navrhovanú lekáreň.
V časti pôvodnej stavby je navrhnuté administratívne zázemie centra, v prízemí je technické krídlo, lekáreň a obslužné a skladové zázemie supermarketu. Na druhom podlaží sa okrem klasických obchodov a služieb uvažuje s fitnes centrom a autonómnou reštauráciou orientovanými k rieke. V koncovej časti druhého podlažia je navrhnuté multikino s trojicou kinosál a vlastným zázemím.
Zdroj: enviroportal.sk, martinrepicky.sk
Pozri ďalšie z oblasti: SPRÁVY - Aktuality
Publikované : 13/07/2012 10:16 am