Upozornenia
Vyčistiť všetko
Dom ktorý hľadal les - Rod. dom Asamayama (projekt, nápady)
Témy a zaujímavosti (archív)
1
Príspevky
1
Užívatelia
0
Reactions
5,193
Zobrazenia
Topic starter
| House in Asamayama - (rodinný dom osadený nad lesom) Kidosaki Architects |
| Architektúra: Kidosaki Architects Studio Zodpovedný projektant - Arch.: Hirotaka Kidosaki Umiestnenie: Asamayama Tsukudeiwanami, Shinshiro, Aichi Prefecture, Japonsko Vedúci projektu: Coco Ashihara Rok projektu: 2011 Fotograf: 45g Photography, Junji Kojima Projektovaná plocha: 225.51 m2 Projektant statiky: Takashi Manda Generálny dodávateľ stavby: Niitsugumi Pozemok: 1,301.31 m2 |
![]() |
Podľa slov investora tohoto projektu, trvalo niekoľko rokov kým našiel miesto, ktoré by splnilo jeho predstavy o "zelenom mori" okolo plánovaného domu. Jednou z nepísaných úloh projektanta sa teda stalo prepojenie scenérie "oceánu" stromov s priestorom interiéru domu.
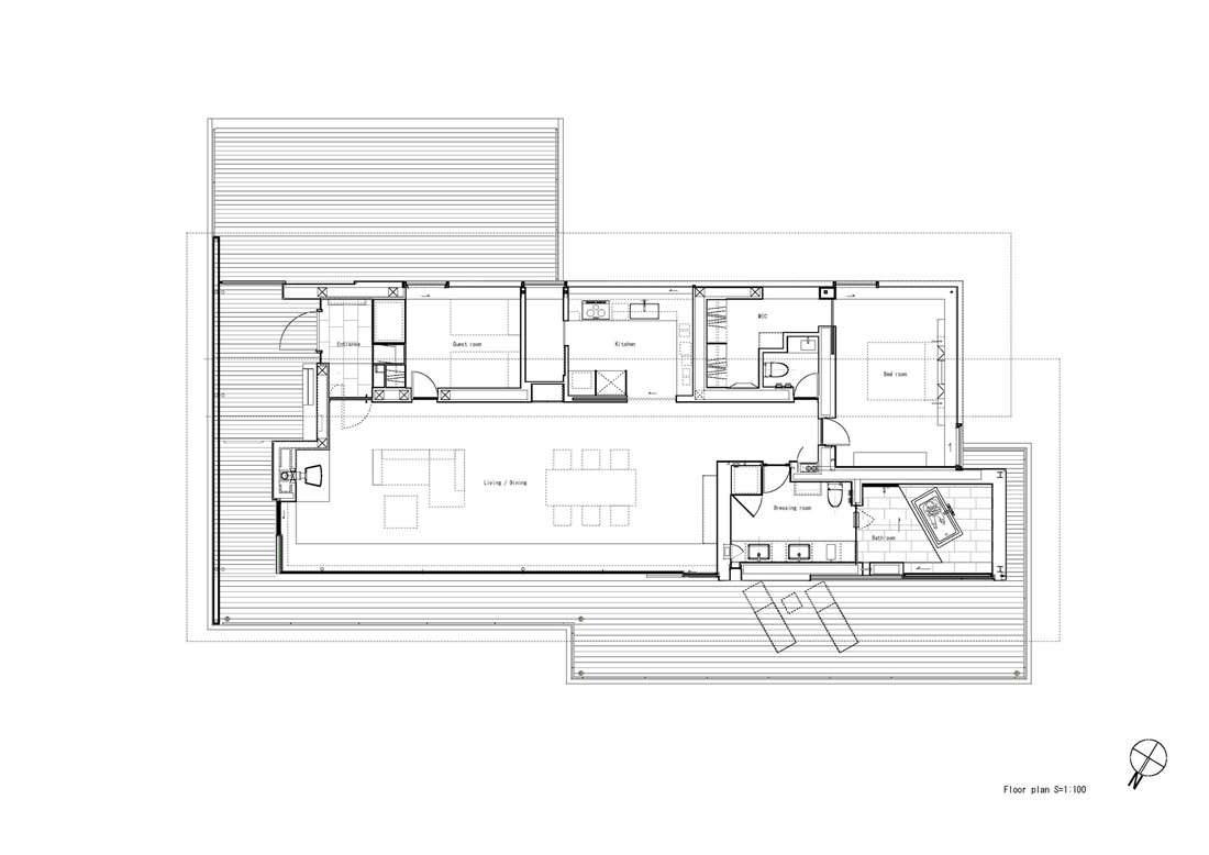
Pôdorys:
![]() |
Pohľad :
![]() |
![]() |
![]() |
|
O tento cieľ sa architekt snažil osadením samotného domu, orientáciou terasy a presklenej steny obývačky, no a nakoniec aj príjemným riešením kúpeľne.
Nakoniec, pozrite si fotky a posúďte riešenie sami
. Enjoy
.
![]() |
![]() |
![]() |
![]() |
![]() |
![]() |
![]() |
![]() |
![]() |
![]() |
|
![]() |
![]() |
![]() |
![]() |
![]() |
![]() |
![]() |
![]() |
|
![]() |
![]() |
|
![]() |
Pozrite si aj iné z oblasti : TÉMY - Zaujímavosti (stavba, architektúra)
| Vaša Stavba od A po Z. |
Publikované : 13/12/2012 2:41 am

























