| Storrs Road / Tim Stewart Architects – Premena centra sadu na rodinné bývanie |
|
| Architekt: Tim Stewart Architects
Rok projektu: 2008
Umiestnenie: Peachester, Sunshine Coast Hinterland, Queensland, Austrália
Fotograf: Christopher Frederick Jones |
|
 |
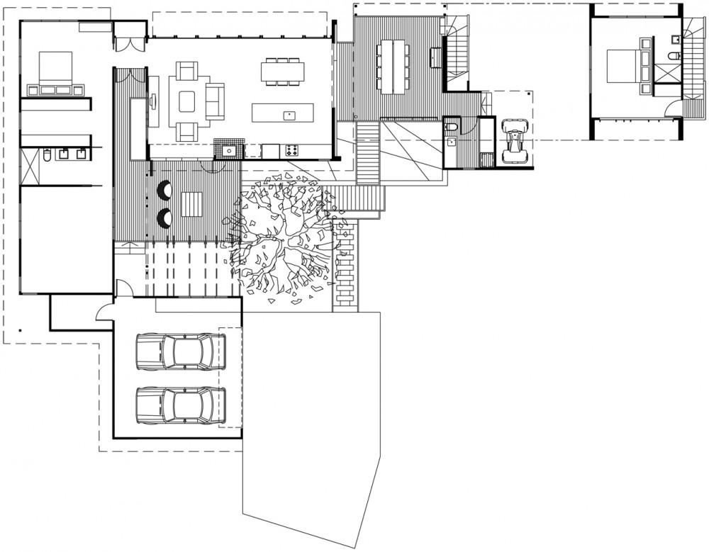
K tomuto domu len v skratke. Jedná sa o rodinný dom na 18 ha pozemku, ktorý slúžil 30 rokov ako ovocný sad rodinnej farmy. Nakoľko jeho majitelia postupne upúšťajú od podnikania (dôchodok), rozhodli sa vytvoriť si svoje nové obydlie v „centre minulého diania“. V duchu tohto osadili nový dom na miesto, kde sa nachádzajú vodné nádrže, ktoré slúžili pre zásobovanie sadu a starého domu.
Pôdorys rodinného domu:
Technicky je objekt riešený ako nízkoenergetický, má osadené solárne panely a priľahlé vodné nádrže mu poskytujú zásoby vody o objeme 60tis. litrov.
Pohľady a rezy :
[adsense01][/adsense01]
Samotná stavba využila drevo zo pôvodného sadu a všetko drevo bolo spracované a opracované na pozemku investora. Stavba samotná bola navrhnutá tak aby zapadla do prostredia sadu a stala sa jeho súčasťou. Viac viď. priložené foto.
Pozrite si aj iné z oblasti : TÉMY - Zaujímavosti (stavba, architektúra)
Publikované : 04/08/2012 3:16 pm