Pripoj sa k nám!
Zdieľať:
Upozornenia
Vyčistiť všetko

Dom na Bahamách - rodinný dom "Kyklop"

1 Príspevky
1 Užívatelia
0 Reactions
5,483 Zobrazenia
temy-az
(@temy-az)
Príspevky: 125
Člen Moderator
Topic starter
 
DOM NA BAHAMÁCH OD URBAN OFFICE ARCHITECTURE



Poloha: Nassau, Bahamy
Architekti: Urban Office Architecture
Zodpovedný architekt: Carlo Enzo Design
Projektový tím: Wamaris Rosario
Rok: 2013

Dom, ktorý sa nachádza v Nassau, na Bahamách, je situovaný na pláži neďaleko severnej pobrežnej cesty a je otočený priamo k oceánu. Jeho orientáciu určuje hlavný severovýchodný výhľad. Návrh domu bol inšpirovaný mýtom o Polyfémovi, jednookom obrovi, a jeho láske ku Galatei.
[adsense01][/adsense01]

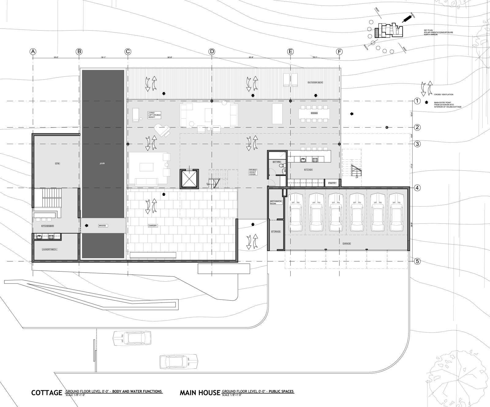
Vila s prezývkou „Kyklop“ bola navrhnutá ako „sledovacie zariadenie“, ktoré je dôkladne orientované smerom na dominantné výhľady v okolí. Dom, ktorý je pojatý ako na seba naskladaný 3-vrstvový systém, je jasne rozdelený vo vertikálnom smere na verejné a súkromné priestory.

Tri vrstvy sú organizované taktiež z funkčného hľadiska, aby posilnili charakteristiku miesta a maximalizovali udržateľné aspekty projektu týkajúce sa ekológie. Prízemie je dokonale prezentované ako priehľadný sklenený box. Nachádzajú sa tu všetky verejné priestory (obývacia miestnosť, kuchyňa, bazén, záhrada, atď.). Prízemie prostredníctvom otváravej presklenej steny výrazne využíva prirodzené priečne prevetrávanie ako hlavný ekologický prvok.

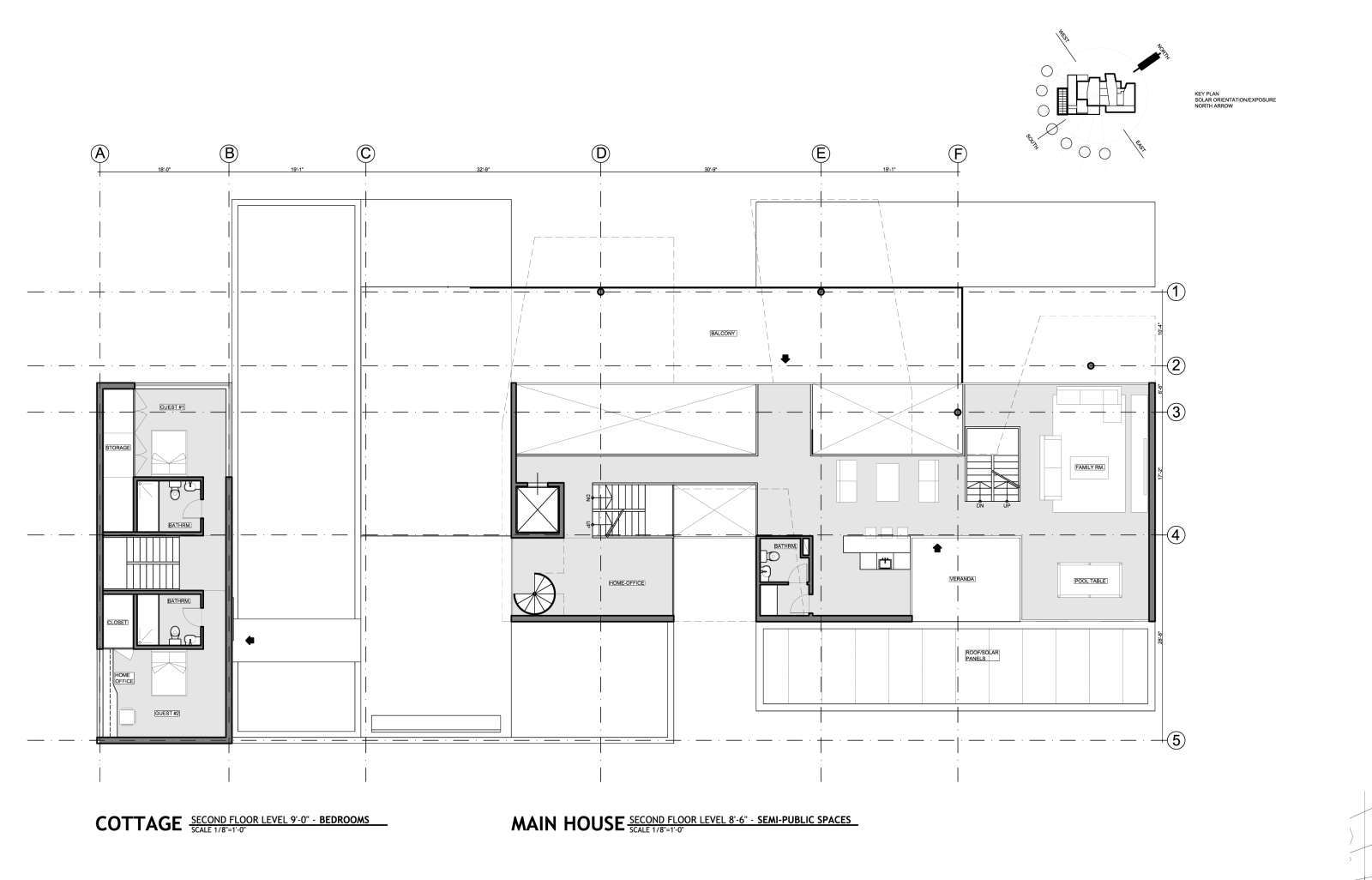
Druhá úroveň funguje ako „spojovací článok“ medzi vrchným a spodným podlažím a slúži ako poloverejný priestor. V tejto časti sa nachádza niekoľko zárezov, ktoré prepájajú priestory do mezonetov. Zároveň sa tu nachádzajú prepojovacie mostíky, ktoré vedú do rodinnej/zábavnej časti na východe objektu. Navyše, prečnievajúca časť a terasa vytvárajú dodatočný tieň pre úroveň nižšie, čím sa znižuje potreba pre nútené a mechanické chladenie.

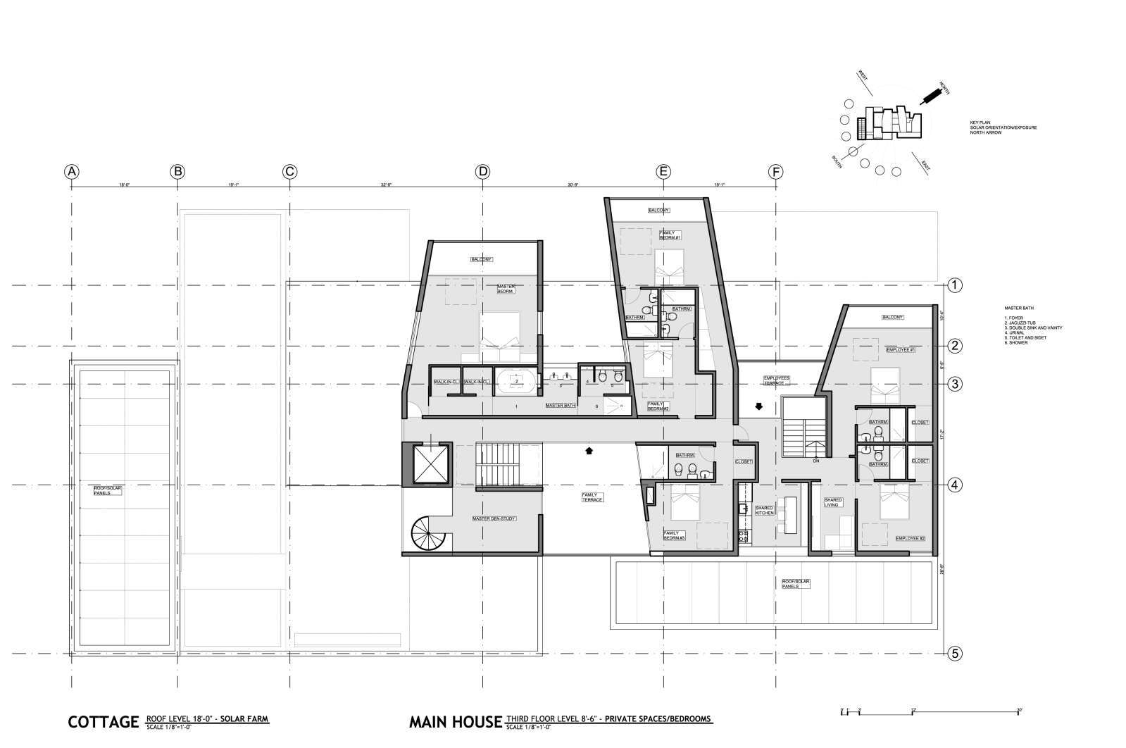
Schodmi a výťahom sa dostanete na tretiu úroveň, kde sa nachádzajú všetky spálne. Spálne, ktoré sú rozdelené na 3 hlavné, drevom obložené časti v tvare periskopov (Kyklopov), sú riešené ako pohodlné a luxusné priestory. Západný „Kyklop“ sa skladá z hlavného apartmánu, hlavnej kúpeľne a súkromnej študovne/pracovne v južnom krídle.

Stredný „Kyklop“ je venovaný zvyšku rodiny a deťom s prístupom na súkromné vonkajšie terasy. Nakoniec východným smerom samostatné schody zabezpečujú prístup do časti pre zamestnancov, ktorá je rovnocenne spojená so zvyškom domu cez hlavný koridor.

Hosťovská chatka dopĺňa miesto smerom na západ, pričom lemuje bazén a záhradu. Solárne panely sa nachádzajú na streche garáže, ako aj chatky a poskytujú veľkú časť spotrebovanej/ekologickej energie. Navyše, južnú stenu druhého podlažia pokrýva fasáda z panelov z fotovoltaických článkov, čo umožňuje rovnako znížiť náklady na potreby elektrickej energie.

Ostatná galéria k článku:

Zdroj: aasarchitecture.com

Vaša Stavba od A po Z.

 
Publikované : 10/06/2014 3:44 pm
Pripoj sa k nám!
Online užívatelia

 Žiadny člen momentálne prihlásený

Kategórie článkov:

Zo správ, aktualít, tém a inšpirácií :)..