Pripoj sa k nám!
Zdieľať:
Upozornenia
Vyčistiť všetko

Rodinný dom “La Branche" (projekt / nápady) DMOA Architecten

1 Príspevky
1 Užívatelia
0 Reactions
7,154 Zobrazenia
temy-az
(@temy-az)
Príspevky: 125
Člen Moderator
Topic starter
 
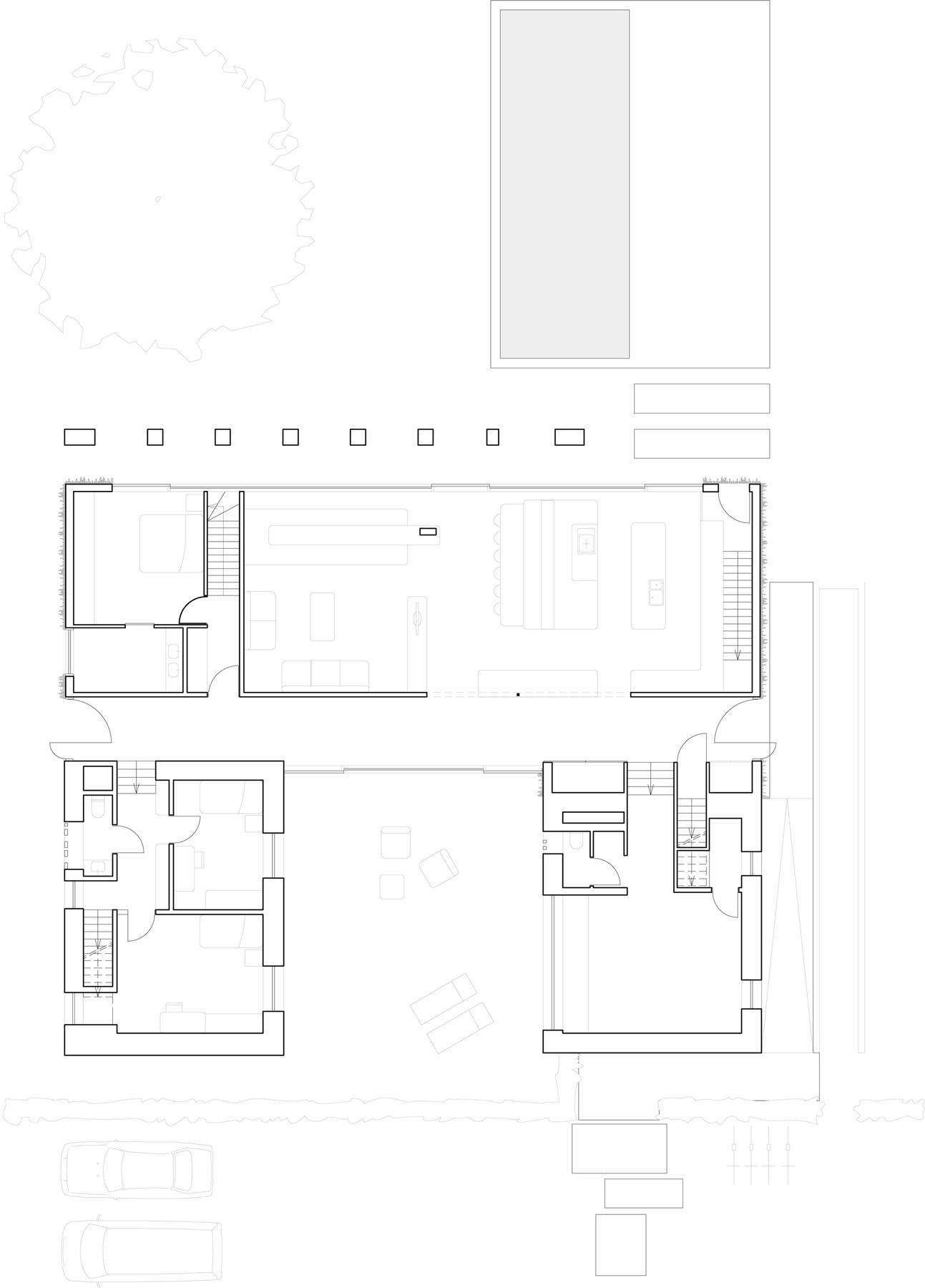
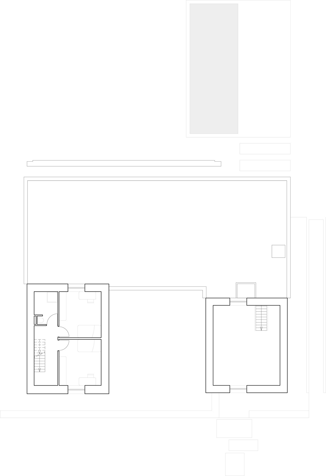
Projekt prestavby existujúceho, tehlového objektu na moderný rodinný dom.



Architektúra : DMOA Architecten
Umiestnenie : Heverlee, Belgicko
Zodpovedný projektant : DMOA Architecten
Kooperácia : Benjamin Denef, Charlotte Gryspeerdt, Matthias Mattelaer, Lien Gesquiere
Zastavaná plocha : 655.0 m2
Foto : Thomas Janssens

Súvisiace fórum : Stavba - Projekty, nápady

Slovo Architekta. Tento projekt je harmonická kombinácia starého a nového. Nová časť pôsobí triezvo a vytvára dojem čierneho plátna. Najviac to vidno zo záhrady, kde je nová časť prekrytá starými stenami. V niektorých častiach boli staré múry ponechané a ako prvky záhradnej architektúry už len dokresľujú atmosféru.
[adsense01][/adsense01]

Keď sa človek prechádza týmto domom, má neustále dojem, akoby sa nachádzal na spojnici starého a nového.

Projekt pozostáva z renovácie starej posiedky pre poľovníkov v lese Heverlee (Belgicko), ktorú premieňa na pohodlné a moderné obydlie pre rodinu so štyrmi deťmi. Jedno z troch krídiel pôvodnej U-kompozície bolo asanované (odstránené) a ostala z neho len fasádna stena spolu s tabuľou s názvom obydlia. Pôvodne tabuľa dávala názov miestu oddychu poľovníkov a teraz posúva svoje meno rekonštruovanému obydliu. „La Branche“.

Pôvodné časti objektu po stranách sú z tehlového muriva a slúžia ako nočná (súkromná) časť objektu. Tmavá (nová) hmota objektu zas slúži ako denná časť – obývacia izba, kuchyňa a poskytuje nerušené prepojenie so záhradou a bazénom.

Tmavé farby interiéru sú navrhnuté tak, aby umocnili kontrast so svetlom prichádzajúcim cez veľké presklené plochy na fasáde.
Ostatná galéria k projektu :

Zdroj : archdaily.com

Súvisiace fórum : Stavba - Projekty, nápady

Vaša Stavba od A po Z.

 
Publikované : 06/01/2014 3:23 am
Pripoj sa k nám!
Online užívatelia

 Žiadny člen momentálne prihlásený

Kategórie článkov:

Zo správ, aktualít, tém a inšpirácií :)..